The Fairway, Ruislip, HA4 0SL. ( A Pair of Semi Detached Houses)
- 2681-BR-600 Elevations

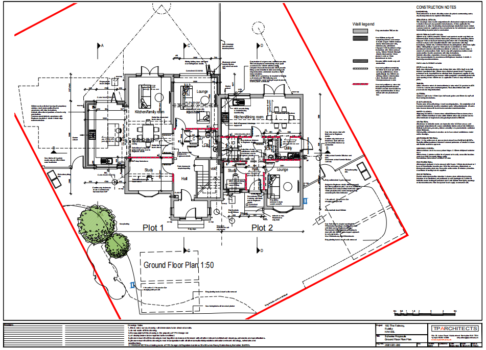
- 2681-BR-200 Ground Floor Plan

- 2681-BR-10 Site plan




The Fairway, Ruislip, HA4 0SL. ( A Pair of Semi Detached Houses) 2681-BR-600 Elevations 2681-BR-200 Ground Floor Plan 2681-BR-10 Site plan
Ground Floor: Lounge , Kitchen / Diner, WC.First Floor: Master bed with Bathroom including Shower and Bath, 2nd Bedroom with ensuite.Second Floor: 3rd Bed with Ensuite.
- All Ground Floor and 1st Floor Underfloor heating
- Fully Tiled Bathrooms
- Bespoke Kitchens with Siemen Appliances
- Complete Flooring Done with Tiling in Kitchen, Wooden and Carpets to 1st and 2nd Floor
- Oak Internal Doors, Oak Glass Staircases
- 10 Year Warranty
Recent Comments